BÜRO              INDUSTRIE               HOTEL/GASTRONOMIE               UNIVERSITÄT/ R&D               DESIGN

Campus

Projektvision

Copyright © 2020 [Christina Hilger]. All Rights Reserved.

CONTEXT. ARCHITECTURE.

WORKSHOPS AND LECTURES

BÜRO              INDUSTRIE               HOTEL/GASTRONOMIE

UNIVERSITÄT/ R&D               DESIGN

BÜRO              INDUSTRIE

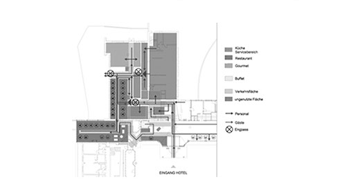
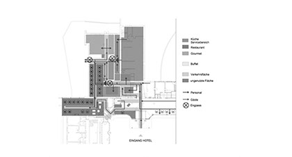
 HOTEL/GASTRONOMIE