OFFICE INDUSTRY HOTEL/GASTRONOMY UNIVERSITY/ R&D DESIGN
Ideenwettbewerb für ein Ausstellungsgebäude
Aufbauend auf unserer Bedarfsanalyse mit Raumprogramm und Nutzungsprofilen evaluierten wir im Rahmen eines Ideenwettbewerbes für ein Ausstellungsgebäude die eingereichten Entwürfe. Anhand eines Kriterienkatalogs sowie durch die Befragung der beteiligten Entscheider konnte ein nachvollziehbarer Auswahlprozess moderiert und dokumentiert werden.
Kommunikationsstrategie für Umbau und Neuorganisation
Evaluierung, Moderation, Koordination für Umbau und Erweiterung eines Auslieferungszentrums. Workshops und Integration unterschiedlicher Fachbereiche und Anforderungen.
Flächenanalysen
Schwachstellenanalyse und Evaluierung von Flächentypologien, Infrastruktur, Wege und Erschließungen und Flächenpotential im Rahmen einer umfangreichen Neugestaltung für einen Industriebau mit ca. 9.000,00 qm.
Raumprogramm
Analyse der Flächen- und Raumqualitäten als Grundlage für die Neugestaltung eines High-End Restaurants.
Change Management
Change Management für ein Anforderungsprofil einer neuen Büroniederlassung der High-Tech-Industrie. Übersetzung der Anforderungen in Nutzungs- und Raumprofile, Flächenanalysen für Vorentwurf.
Bedarfsanalyse für den Neubau einer wissenschaftlichen Fakultät ca. 5.000 qm
Evaluierungsprozess für Anforderungen, Kapazitäten und Belegungspotential mit den zukünftigen Nutzern für den Neubau einer naturwissenschaftlichen Fakultät einer Technischen Universität mit ca. 5.000 qm.
Umbau eines Konferenzzentrums
Definition der Anforderungen und Grundlagen für die Neugestaltung eines High-End Konferenzzentrums eines 5 Sterne Hotels, zusammengefasst in Flächen- und Schwachstellenanalyse, Entscheidungsvorlagen, Lastenheft.
Labor-und Arbeitsplatztypologien
Räumliches Anforderungsprofil inkl. Arbeitsplatz- und Raumtypologien für den Neubau einer naturwissenschaftlichen Fakultät einer Technischen Universität.
Bedarfsanalyse als Grundlage Ideenwettbewerb
Evaluierung von Grundlagen, Kontext und Kriterien für einen Ideenwettbewerb für Erweiterung und Neubau eines repräsentativen multifunktionalen Ausstellungsgebäudes.
Ordnungsstruktur
Evaluierung eines Ordnungsrahmens für sämtliche Industriegebäude eines Konzerns,
Organisation, Moderation und fachspezifische Dokumentation Kommunikationsprozess zur Ermittlung der Anforderungsprofile für den Ordnungsrahmen sämtlicher Industriebauten eines internationalen Konzerns.
Campus
Studien zur Grundlagenevaluierung und Projektentwicklung für eine Campuserweiterung eines Sportartikelherstellers im Rahmen eines Wettbewerbes.
Bedarfsanalyse und Konzeptdesign für das Headquarter einer M&A Company
Anforderungsprofil und Raumkonzepte für ein Private Equity Unternehmen in historischem Bestand. Umwandlung der bestehenden Büroflächen in offene Teamstrukturen, repräsentative Flächen für Besucher und Konferenzen sowie die Infrastruktur für modernste Kommunikationstechnologien.
Unterschiedliche Arbeitsweisen integrieren
Bedarfsanalyse und Change Management für die Integration unterschiedlicher Funktionseinheiten eines High-Tech-Unternehmens in ein einheitliches Konzept mit adäquaten modularen Raumstrukturen für unterschiedliche Nutzungen für einen Neubau in der Schweiz.
Neubau eines High-Tech-Unternehmens in Moskau
Bedarfsanalyse für einen Neubau. Evaluierung der funktionalen und kulturellen Grundlagen der sehr spezifischen Organisationsstruktur: Umsetzung eines intensiven Change Management Prozesses in innovative Flächen- und Raumkonzepte. Konzeptdesign für die Büroräume, Integration der lokalen Anforderungen des Managements nach Sicherheit, Status und Repräsentation mit effizienter Flächennutzung und einem offenen Konzept für Teamarbeit.
Immobilienkonzept
Machbarkeitsstudien zum Potential einer Drittvermietbarkeit/Umnutzung der geplanten Gebäude für den Masterplan eines High-Tech-Unternehmens für 7.000 Mitarbeiter. Evaluierung der geplanten Gebäudestrukturen, Lage der Kerne, Erschließungen etc. für alternative Nutzungen.
Begleitende Projektentwicklung
Anforderungsprofil, Prozessbegleitung durch Nutzerkommunikation, Vorbereitung sämtlicher Meilensteine im Projektteam durch Studien und Analysen für ein Gebäude der Automobilindustrie für ca. 1.000 Ingenieure inkl. Werkstatt und Simulationsflächen. Implementation neuer offener Raumstrukturen.
Flächeneinsparungen durch Analyse
Begleitende Analysen für die Entwicklung der Raumstrukturen für ein Büro- und Werkstattgebäude mit ca. 30.000 qm. Durch ein Konzept für eine modulare Flächenentwicklung konnten mehr als 3.000 qm Nutzfläche definiert werden und dadurch mehr Mitarbeiter im Gebäude integriert werden.
Schwachstellenanalyse
Für ein großes Autohaus analysierten wir Wegeführungen und Erschließung, sowie Flächenqualitäten als Grundlage für die bauliche Um- und Neugestaltung.
Projektvision
Für den Umbau eines 5- Sterne- Hotels definierten wir die ersten Projektanforderungen und Ziele aufgrund der Analyse von Funktionalität und Nutzungsqualität der räumlichen Strukturen.
Gebäudeformen
Studien und Evaluierungen zu Gebäudestrukturen und deren Potential für den Entwurf eines High-Tech-Campus.
Übersetzung von Nutzungsprofilen in Raummodule
Bedarfsanalyse, Kommunikationsprozess und Definition der Nutzerprofile für das neue Headquarter eines globalen High-Tech-Konzernes, der alle Mitarbeiter an einen Standort bündeln wollte.
Aufbauend auf einer Bedarfsanalyse mit begleitender Nutzerkommunikation wurden sämtliche unternehmensspezifische Nutzertypologien und Funktionen in Raummodule für Büro- und Laborarbeitsplätze übersetzt. Die Mitarbeiter wurden durch die Evaluierungen in alle Schritte der Planung integriert, was trotz Umzug und Flächenreduktion zu einer hohen Integration und Motivation führte.
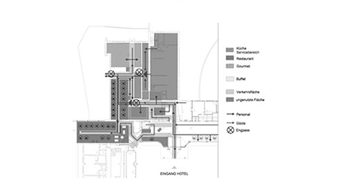
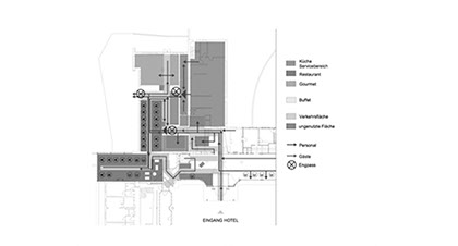
Neue Flächen
Evaluierung von Anforderungen und Grundlagen für den Umbau eines 5 Sterne Hotels. Analyse von Funktionen und Technischer Infrastruktur; Konzeptionelles Design für die Umgestaltung.
Standortentwicklung
Ein Unternehmen der Automobilbranche plante die Zusammenführung neuer und alter Funktionen an einem gemeinsamen Standort auf der grünen Wiese. Hierfür evaluierten wir Prozesse und Abläufe, definierten Anforderungen und Unternehmenszielsetzungen für eine „Idealstruktur“ für das Projekt mit Definition sämtlicher Funktionen in einem Masterplan.
Aufgrund der abgestimmten Anforderungen, Qualitäten und Kapazitäten der Idealstruktur konnte eine klare Aufgabenstellung formuliert werden. Grundstücksoptionen, Kosten und Budget sowie quantitative, strategische und funktionale Zusammenhänge konnten definiert, überprüft, potentielle Problemstellungen erkannt sowie alternative Lösungsszenarien erschlossen werden.
Globaler Kontext
Evaluierung aktueller Trends und Entwicklungen im Bereich Gastronomie und Ausstellungsarchitektur auf der EXPO 2015 „feeding the planet- energy for life“ für das Gastrokonzept in einem Themenpark.
Bedarfsanalyse
Entwicklung einer Studie als Grundlage für einen Architektenwettbewerb für den Neubau eines Forschungsgebäudes im Rahmen der Exzellenzinitiative TU München. Definition von Raumprogramm und Anforderungsprofil auf Basis der zukünftigen Nutzungen und Abläufen des Instituts in Workshops mit Wissenschaftlern, Experten und Auftraggebern. Anforderungen und Rahmenbedingungen wurden in ein Flächen- und Raumprogramm übersetzt und in eine Auslobungsunterlage zusammengefasst.
Aufgrund der Evaluierungen wurde der Wettbewerb auf Basis der bestehenden Anforderungen der zukünftigen Nutzer ausgeschrieben. Zudem konnte der Budgetrahmen verifiziert und inhaltliche und strategische Kriterien für das Auswahlverfahren im Wettbewerb bestimmt werden.
Erkenntnisse aus der Biennale für ein Bauprojekt
Für ein Bauprojekt eines Kunden analysierten wir wesentliche Fragestellungen und kontextbezogene Erkenntnisse aus der Architekturbiennale für die weitere Projektentwicklung.
<
>
x
Organization
Copyright © 2020 [Christina Hilger]. All Rights Reserved.
CONTEXT. ARCHITECTURE.
WORKSHOPS AND LECTURES